文章
  • 文章
  • 产品
搜索
首页 >> 产品 >>800mm宽 >>1100mm深 >> 华为FusionModule500 微型智能微模块 (ECC800e) (双火线 208V 电源制式) 42U 机柜多柜场景 华为网络机柜
详细说明

华为FusionModule500 微型智能微模块 (ECC800e) (双火线 208V 电源制式) 42U 机柜多柜场景 华为网络机柜

暂无价格
  • 产品说明

华为FusionModule500 微型智能微模块 (ECC800e) (双火线 208V 电源制式) 42U 机柜多柜场景 华为网络机柜

42U 机柜多柜场景

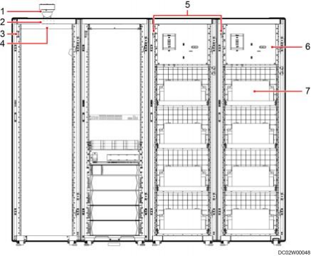
42U 机柜多柜包含 2 柜、3 柜和 4 柜场景,以 4 柜(网络柜+基础设施一体柜+电池柜+ 电池柜)场景为例。

 

2-5 42U 机柜 4 柜场景(正面)

 

L口说明

l 基础设施一体柜请参考单柜场景。

l 2 柜(基础设施一体柜+电池柜)场景时,独立部署 AI/DI 模块选配安装在电池柜背面顶部 42U

l 当网络柜和电池柜同时存在时,独立部署 AI/DI 模块优先选配安装在网络柜背面顶部 42U

l 当配置了蓄电池时,基础设施一体柜不配置电池包。


 

 

 

2-7 42U 机柜 4 柜场景部件介绍

 

编码

部件

是否需要现场安装

是否需要现场接线

1

摄像机(可选)

需要

需要

2

温湿度传感器(可 选)

说明

l 800mm 宽网络柜,

温湿度传感器安装在 网络柜左侧。

l 600mm 宽网络柜,

温湿度传感器安装在 网络柜顶部。

需要

需要

3

门磁(可选) 说明

机柜后门的门磁(可

),安装位置参考基础 设施一体柜。

需要

需要

4

独立部署 AI/DI 模块 (可选)

需要

需要

5

门磁(可选) 说明

机柜后门的门磁(可

),安装位置参考基础 设施一体柜。

需要

需要

6

电池柜配电

需要

需要

7

蓄电池

需要

需要


技术支持: 建站ABC | 管理登录
×
seo seo