文章
  • 文章
  • 产品
搜索
首页 >> 产品 >>800mm宽 >>1100mm深 >> 华为FushionModule2000 智能微模块数据中心 V200R002IT 柜 华为网络机柜
详细说明

华为FushionModule2000 智能微模块数据中心 V200R002IT 柜 华为网络机柜

暂无价格
  • 产品说明

华为FushionModule2000  智能微模块数据中心 V200R002IT 柜 华为网络机柜  

 IT 

IT 柜符合 IEC  (International Electrotechnical Commission) 60297- 1 标准,为数据中心服 务器提供可靠稳定的安装空间, 保证服务器的安全运行

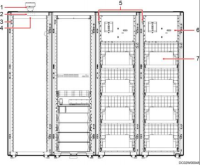
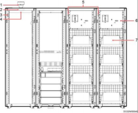
智能微模块配置的机柜尺寸统一,并采用前后风道。机柜外观如3-1所示,主要技

数见3-1


3-1  机柜外观图

 

 

 

柜满足以下特性:

   机柜前后门通风率不低于 70%

   机柜内后部可安装两条竖装配电排(既 Rack power distribution unit,下文简称为

PDU2000)。

   机柜的垂直安装上标示有每U”的位置。

   机柜的前门和后门带锁, 并只能用专用钥匙才能打开

   静载 1200kg

   机柜支持底座安装。安装尺寸如3-1所示。

 

3-1  机柜技术指标

 

参数

技术指标

形尺寸

(高×宽×深)

   2000mm×600mm×1200mm

   2200mm×600mm×1200mm

   2000mm×800mm×1200mm

   2200mm×800mm×1200mm

黑色

A 级优质碳素冷轧钢板和镀锌板

风道

后风道

 


 

 

参数

技术指标

装空间

   2000mm 高机柜提供 42U 可用空间

   2200mm 高机柜提供 47U 可用空间

 前后方孔条之间距离可按照 25mm 步距调节,机柜后侧设置

两条竖 PDU2000 安装位置

装方式

防静电地板或水泥地面

开门方式

门单开, 后门双开

机柜重量

   2000mm×600mm×1200mm,重量 128kg

   2200mm×600mm×1200mm,重量 137kg

   2000mm×800mm×1200mm,重量 153kg

   2200mm×800mm×1200mm,重量 164kg

(空机柜重量指机柜带前门和后门的重量)

护等级

IP20

 

 


技术支持: 建站ABC | 管理登录
×
seo seo