|
华为FusionModule500 微型智能微模块 (ECC800e) (双火线 208V 电源制式) 42U 机柜多柜场景 华为网络机柜
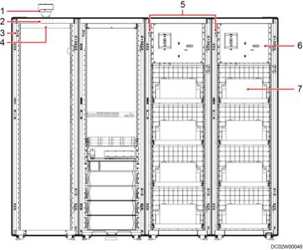
华为FusionModule500 微型智能微模块 (ECC800e) (双火线 208V 电源制式) 42U 机柜多柜场景 华为网络机柜 42U 机柜多柜场景 42U 机柜多柜包含 2 柜、3 柜和 4 柜场景,以 4 柜(网络柜+基础设施一体柜+电池柜+ 电池柜)场景为例。
图2-5 42U 机柜 4 柜场景(正面)
L口说明 l 基础设施一体柜请参考单柜场景。 l 2 柜(基础设施一体柜+电池柜)场景时,独立部署 AI/DI 模块选配安装在电池柜背面顶部 42U。 l 当网络柜和电池柜同时存在时,独立部署 AI/DI 模块优先选配安装在网络柜背面顶部 42U。
表2-7 42U 机柜 4 柜场景部件介绍
|
