文章
  • 文章
  • 产品
搜索
首页 >> 产品 >>800mm宽 >>1100mm深 >> 华为FusionModule500 微型智能微模块 (ECC800e)(双火线 208V 电源制式) 42U 机柜单柜场景华为网络机柜
详细说明

华为FusionModule500 微型智能微模块 (ECC800e)(双火线 208V 电源制式) 42U 机柜单柜场景华为网络机柜

暂无价格
  • 产品说明

华为FusionModule500 微型智能微模块  (ECC800e)(双火线 208V 电源制式) 42U 机柜单柜场景华为网络机柜

42U 机柜单柜场景

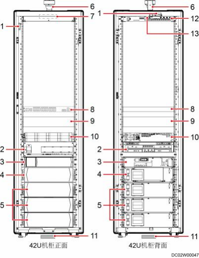
42U 机柜单柜场景各部件如 2-4所示。


2-4 42U 机柜单柜场景

 

 

 

2-6 42U 机柜部件介绍

 

编号

部件

是否需要现场安装

是否需要现场接线

1

门磁

不需要

不需要

2

PDU5000

不需要

需要

3

UPS

不需要

需要

4

变压器

不需要

不需要

5

电池包(可选)

需要

需要

6

摄像机(可选)

需要

需要

7

温湿度传感器

不需要

不需要

8

交换机(可选)

需要

需要

 


 

编号

部件

是否需要现场安装

是否需要现场接线

9

服务器(可选)

需要

需要

10

VCN(可选,

图示以 VCN500 为例)

需要

需要

11

水浸传感器

需要

需要

12

ECC800e

不需要

不需要

13

感烟探测器

不需要

不需要


技术支持: 建站ABC | 管理登录
×
seo seo