|
华为FusionModule500 微型智能微模块 (ECC800e) 单相 220V 电源制式42U 机柜多柜场景华为网络机柜
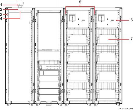
42U 机柜多柜场景
L口说明 l 基础设施一体柜请参考单柜场景。 l 2 柜(基础设施一体柜+电池柜)场景时,独立部署 AI/DI 模块选配安装在电池柜背面顶部 42U。 l 当网络柜和电池柜同时存在时,独立部署 AI/DI 模块优先选配安装在网络柜背面顶部 42U。 l 当配置了蓄电池时,基础设施一体柜不配置电池包。
表2-5 42U 机柜 4 柜场景部件介绍
华为FusionModule500 微型智能微模块 (ECC800e) 单相 220V 电源制式42U 机柜多柜场景华为网络机柜 |
