|
华为N66E 机柜 华为网络机柜
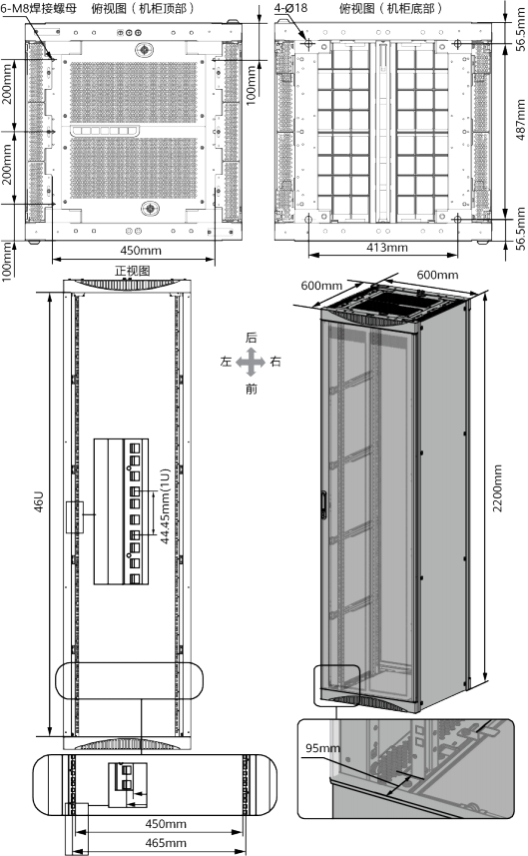
华为N66E 机柜 华为网络机柜 图 3-1 N66E 机柜外观图
N66E机柜参数如表3-1所示。 表 3-1 N66E 机柜参数
N66E机柜尺寸参数如图3-2所示。
N66E机柜分为前维护机柜和后维护机柜。本文档中介绍的设备使用后维护机柜。后维 护机柜由前、后、侧门和机架组成,如图3-3所示。 图 3-3 N66E 后维护机柜组成图
1. 前门 2. 机架 3. 背面的门 4. 侧门
3.1.4 N66E 机柜结构特点
机柜材质 N66E机柜由优质电镀锌板和冷轧钢板材通过焊接构成,内部材料防火性能符合UL ( Underwriter Laboratories)标准。 布线方式 N66E机柜顶部和底部都留有过线孔,支持顶部出线和底部出线两种走线方式: ● 采用顶部出线时,外部线缆从机柜顶部进入机柜,具体的进线孔分布如图3-4所 示。 ● 采用底部出线时,外部线缆从机柜底部进入机柜。
C口 说明 本文档中介绍的设备采用顶部出线方式。 图 3-4 机柜顶部进线孔图
N66E机柜后、前门和顶板上开有高密的通风孔,支持前进风、后出风、上出风的通风 方式,具备良好的散热性能。 C口 说明 ● 本文档中介绍的设备是左后风道散热方式,风扇在设备的后部。 ● 本文档中介绍的设备在机柜中的整体风道为:机柜前->设备左->设备内->设备后->机柜后, 如图3-5所示。
图 3-5 设备在机柜中的整体风道图
N66E机柜在防护方面做了以下处理: ● 设计时充分考虑了电磁兼容性问题,使机柜具有良好的电磁屏蔽性能。 ● 机柜底板上的通风孔内衬防尘网,使机柜具备良好的防尘性能。 ● 机柜各部件均良好接地,接地电阻不大于0.1欧姆。 ESD 插孔 配戴防静电腕带时,防静电腕带的接口一端要插在ESD插孔中。 ESD插孔位于N66E机 柜中部,插孔下方有“ESD”标识,如图3-6所示。
图 3-6 N66E 机柜 ESD 插孔示意图
N66E机柜有以下两种安装场景: ● 可在水泥地面上安装。 ● 可在防静电地板上安装。在防静电地板上安装时,配用N6X系列支架。 N66E机柜支持肩并肩并柜。并柜时顶部使用并柜连接板连接,如图3-7所示。并柜连 接板为机柜自带的附件。 图 3-7 N66E 机柜并柜示意图
|






