华为FusionModule500 ECC800e 42U 机柜 华为网络机柜
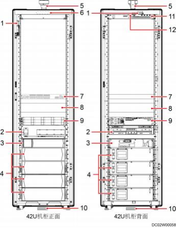
42U 机柜单柜场景各部件如图 2-2所示。
图2-2 42U 机柜单柜场景

表2-4 42U 机柜场景部件介绍
编号 | 部件 | 是否需要现场安装 | 是否需要现场接线 |
(1) | 门磁 | 不需要 | 不需要 |
(2) | PDU5000 | 不需要 | 需要 |
(3) | UPS | 不需要 | 需要 |
(4) | 电池包(可选) | 需要 | 需要 |
(5) | 摄像机(可选) | 需要 | 需要 |
(6) | 温湿度传感器 | 不需要 | 不需要 |
(7) | 交换机(可选) | 需要 | 需要 |
(8) | 服务器(可选) | 需要 | 需要 |
(9) | VCN(可选,图示以 VCN500 为例) | 需要 | 需要 |
(10) | 水浸传感器 | 需要 | 需要 |
(11) | ECC800e | 不需要 | 不需要 |
(12) | 感烟探测器 | 不需要 | 不需要 |
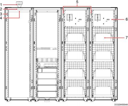
42U 机柜多柜场景
42U 机柜多柜包含 2 柜、3 柜和 4 柜场景,以 4 柜(网络柜+基础设施一体柜+电池柜+ 电池柜)场景为例。
图2-3 42U 机柜 4 柜场景(正面)
L口说明
l 基础设施一体柜请参考单柜场景。
l 2 柜(基础设施一体柜+电池柜)场景时,独立部署 AI/DI 模块选配安装在电池柜背面顶部 42U。
l 当网络柜和电池柜同时存在时,独立部署 AI/DI 模块优先选配安装在网络柜背面顶部 42U。
l 当配置了蓄电池时,基础设施一体柜不配置电池包。
表2-5 42U 机柜 4 柜场景部件介绍
编号 | 部件 | 是否需要现场安装 | 是否需要现场接线 |
(1) | 摄像机(可选) | 需要 | 需要 |
(2) | 温湿度传感器(可选) 说明 l 800mm 宽网络柜, 温湿度传感器安装在 网络柜左侧。 l 600mm 宽网络柜, 温湿度传感器安装在 网络柜顶部。 | 需要 | 需要 |
(3) | 门磁(可选) 说明 机柜后门的门磁(可 选),安装位置参考基础 | 需要 | 需要 |
编号 | 部件 | 是否需要现场安装 | 是否需要现场接线 |
| 设施一体柜。 |
|
|
(4) | 独立部署 AI/DI 模块 (可选) | 需要 | 需要 |
(5) | 门磁(可选) 说明 机柜后门的门磁(可 选),安装位置参考基础 设施一体柜。 | 需要 | 需要 |
(6) | 电池柜配电 | 需要 | 需要 |
(7) | 蓄电池 | 需要 | 需要 |